使用场所及使用要求 |
环境温度:最高温度+40℃、最低温度-15℃、日平均值不大于+35℃; 环境湿度:日平均相对湿度不大于95%,月平均相对湿度不大于90%,温度聚降时,可能凝露; 海拔高度:不高于1000m 地震烈度:不超过8度 安装场所:没有火灾、爆炸危险,没有严重污秽、化学腐蚀及剧烈振动的场所; 对特殊工作条件,由制造厂与用户协商并按标准进行修正。 |
||||||||||||||||||||||||||||||||||||||||||||||||||||||
| 型号、规格系列及其说明 |
SGM-VD5C-12/□-□型户内高压交流真空断路器 SGM—企业代号 VD—真空设计 C—侧装 5—设计序号 12—额定电压(kV) □—额定电流(A) □—额定短路开断电流(kA) |
||||||||||||||||||||||||||||||||||||||||||||||||||||||
| 主要技术参数 |
|
||||||||||||||||||||||||||||||||||||||||||||||||||||||
| 主要技术特点 | 1、断路器操动机构和断路器本体一体化设计,采用前后布置的形式侧装式结构; 2、断路器主导电回路部分采用三相落地式结构,灭弧室安装在绝缘筒,也可采用直接固封方式,机械强度高,耐污能力强。 3、断路器以真空作为灭弧介质,灭弧室采用杯状纵磁结构,开断能力强; 4、断路器操作机构采用弹簧储能方式,手动和电动操作互不干涉,具有自由脱扣和防跳功能; 5、断路器可装入固定式开关柜,特别适用于小型化开关柜; 6、断路器的二次接线采用接线端子排,实现与外部电气系统连接。 |
||||||||||||||||||||||||||||||||||||||||||||||||||||||
| 采购须知(注:即简要说明采购时,需方须提供的基础数据) | 1、断路器型号、名称、额定电压、额定电流、额定短路开断电流及订货数量; 2、二次原理及接线图、端子排列图(若无端子排列图按制造厂端子排编排)、额定操作电压及配置要求; 3、断路器安装方式及相间距离; 4、断路器机构形式; 5、附件及备品备件的种类和数量; 6、特殊环境条件的要求及其它特殊要求。 |
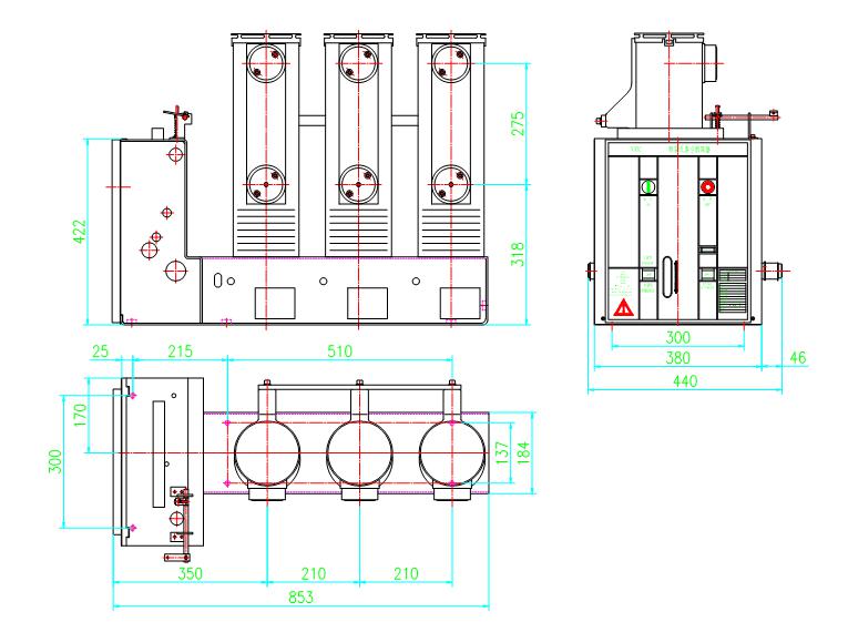
产品图例

绝缘筒式
断路器本体结构图
固封式


操作机构内部结构图
绝缘筒(主回路)内部结构图

侧装式断路器外形尺寸图